Bouwgrond
€ 145.000

Opaaigem 39, 9420 Erpe-Mere
    • delen

Omschrijving Ref.: 7253375

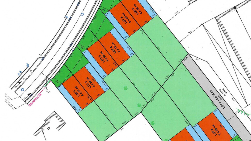
Bouwgronden voor HOB/OB met Z-gerichte terras/tuin (Aaigem)


Deze 2 mooie bouwgronden voor het bouwen van halfopen bebouwingen of open bebouwing (bij samenvoegen van 2 gekoppelde loten)
zijn gelegen op een zeer gunstige en mooie locatie in het landelijke Aaigem waarbij alles voor het dagelijkse leven kortbij ter beschikking is zoals school, winkels, alle zorgverlening, bushalte, treinstation, vlotte verbinding naar E40 en als belangrijke troef zijn er de talrijke wandelwegen langs de achtergelegen velden en bossen.
De tuinen en terrassen zijn Z-georiënteerd.

De bouwvoorschriften zijn (voor halfopen):
Bouwvrije strook van 3m te voorzien.
De toegelaten bouwdiepte is 16m op het gelijkvloers en kelder, op de verdieping is 12m toegestaan. De toegelaten kroonlijsthoogte is 4,5m voor het hoofdvolume.
Autobergplaats is te voorzien in hoofdvolume. Ook bergplaats, tuinhuis, poolhouse kan met max 30m2 voor HOB.
Bij interesse en meer info contacteer Kristien 0475 496218.



Uw contact

Vragen over deze eigendom ref: 7253375
contact

Details van het pand

Financieel

Prijs
€ 145.000,00
Onder BTW stelsel
Nee
Beschikbaarheid
Vanaf akte

Ligging

Buurt
Landelijk, zonnekant
School nabij
200m
Winkels nabij
1.000m
Openbaar vervoer nabij
150m
Autosnelweg nabij
5.000m
Sportcentrum nabij
4.500m

Terrein

Grondoppervlakte
458,00 m²
Terreindiepte
48,00 m

Technieken

Elektriciteit
Ja
Riolering
Ja
Gas
Ja
Water
Ja

Stedenbouw

Bestemming
Woongebied met landelijk karakter
Bouwvergunning
Ja
Verkavelingsvergunning
Ja
Voorkooprecht
Nee
Dagvaarding
Nee
O-peil
Niet gelegen in een overstromingsgevoelig gebied
G-score
A
P-score
A
Watergevoelig openruimtegebied
Nee
Vonnissen
Nee
Servitude
Nee

Meer info over deze eigendom

Bedankt voor je bericht, we contacteren je zo spoedig mogelijk.
Er was een probleem bij het versturen van het formulier, gelieve opnieuw te proberen.
U moet de algemene voorwaarden aanvaarden om dit bericht te kunnen verzenden
(*) Gelieve de verplichte velden in te vullen.