Huis
€ 412.500

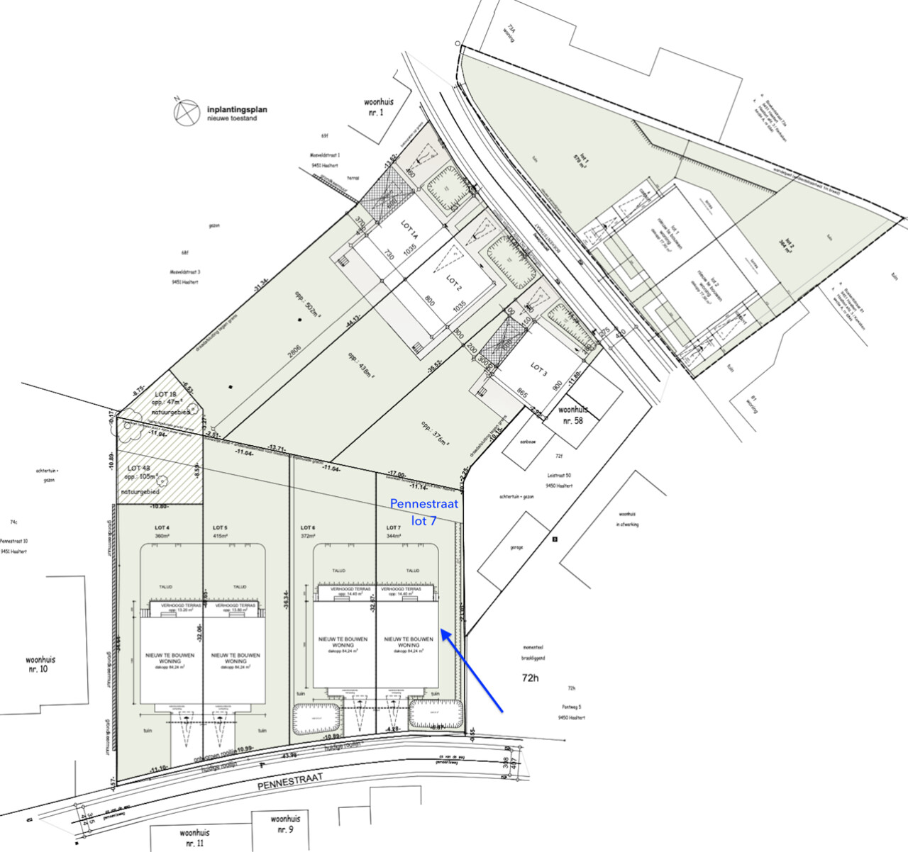
Pennestraat 8, 9450 Haaltert
    • delen
Dit pand maakt deel uit van Nieuwbouwproject te Haaltert Boekentstraat/Pennestraat

Omschrijving Ref.: 7190017

Halfopen nieuwbouwoning met tuin en garage (Pennestraat)


9 NIEUWBOUWWONINGEN TE KERKSKEN – UW NIEUWE THUIS IN EEN RUSTIGE, GROENE OMGEVING!

Ontdek deze 9 prachtige nieuwbouwwoningen, ideaal gelegen in het charmante Kerksken, een oase van rust met tal van wandelwegen in de buurt. Perfect voor wie houdt van een landelijke omgeving, zonder in te boeten op comfort en bereikbaarheid.
De natuur rondom de woningen en in de buurt draagt bij tot een gezonde en rustige leefomgeving.
Alle winkels, scholen en zorgverlening is zeer vlot bereikbaar op ongeveer 1 km.
Dit project combineert moderne architectuur met de charme van een rustige woonomgeving. Een droomlocatie voor gezinnen, jonge koppels en iedereen die het beste zoekt van twee werelden: rust en gemak.
De woningen beschikken over hoogwaardige materialen en alle moderne technieken zoals een warmtepomp, vloerverwarming en hernieuwbare energie waardoor je een lage energiefactuur zal bekomen.
Alle woningen beschikken over 3 slaapkamers, luxueuze badkamer, een grote lichtrijke leefruimte met semi-open keuken, een handige berging grenzend aan de keuken. Deze geeft toegang naar het achtergelegen terras.
De zolder biedt een extra ideale bergruimte.
Er is keuzevrijheid in ons aanbod: met garage of met carport, met warmtepomp of gascondensatieketel.

Deze woningen verdienen je aandacht.
Neem vandaag nog contact op voor meer informatie of een bezoek op het kantoor van Aeygems Vastgoed!


Uw contact

Vragen over deze eigendom ref: 7190017
contact

Details van het pand

Financieel

Prijs
€ 412.500,00
Onder BTW stelsel
Ja
Beschikbaarheid
Bij oplevering

Ligging

Buurt
Landelijk, rustig
School nabij
1.500m
Winkels nabij
2.000m
Openbaar vervoer nabij
700m
Autosnelweg nabij
5.500m
Sportcentrum nabij
4.000m

Gebouw

Bewoonbare oppervlakte
197,00 m²
Aantal gevels
3
Bouwjaar
2025
Staat
Nieuw
Gevelbreedte
7,80 m
Type dak
Noordboomdak
Oriëntatie achtergevel
Zuidoosten
Oriëntatie voorgevel
Zuidwesten

Terrein

Grondoppervlakte
344,00 m²
Tuin
Ja
Oriëntatie terras 1
Oost

Parkeermogelijkheden

Garage
1
Parkings buiten
1
Parkings binnen
1

Indeling

Keuken
Ja, volledig geïnstalleerd
Slaapkamer 1
15,00 m²
Slaapkamer 2
13,00 m²
Slaapkamer 3
10,00 m²
Badkamer type
Douche en ligbad
Toiletten
2
Terras
14,40 m²
Wasplaats
Ja
Zolder
Ja

Comfort

Gemeubeld
Nee

Energie

Dubbele beglazing
Ja, thermische en akoestische onderbreking
Ramen
Hout of pvc
Type verwarming
Gas cv
Regenwaterput
Ja

Technieken

Elektriciteit
Ja
Kabeltelevisie
Ja
Riolering
Ja
Gas
Ja
Water
Ja

Stedenbouw

Bestemming
Woongebied met landelijk karakter
Bouwvergunning
Ja
Verkavelingsvergunning
Ja
Voorkooprecht
Nee
Dagvaarding
Nee
O-peil
Niet gelegen in een overstromingsgevoelig gebied
P-score
D
Watergevoelig openruimtegebied
Nee
Vonnissen
Nee
Servitude
Nee

Meer info over deze eigendom

Bedankt voor je bericht, we contacteren je zo spoedig mogelijk.
Er was een probleem bij het versturen van het formulier, gelieve opnieuw te proberen.
U moet de algemene voorwaarden aanvaarden om dit bericht te kunnen verzenden
(*) Gelieve de verplichte velden in te vullen.